Login OnlineBanking

Vier Eigentumswohnungen in Bückeburg

Ein komplett neues Wohngefühl im alten Villenviertel!

Objekt-Nr.: 3088, 31675 Bückeburg 

Verkäufer: Prange Das Haus GmbH

  • Eine Visualisierung vom Bauprojekt.
  • Ein Skizze der Nordansicht.
  • Ein Skizze der Südansicht.
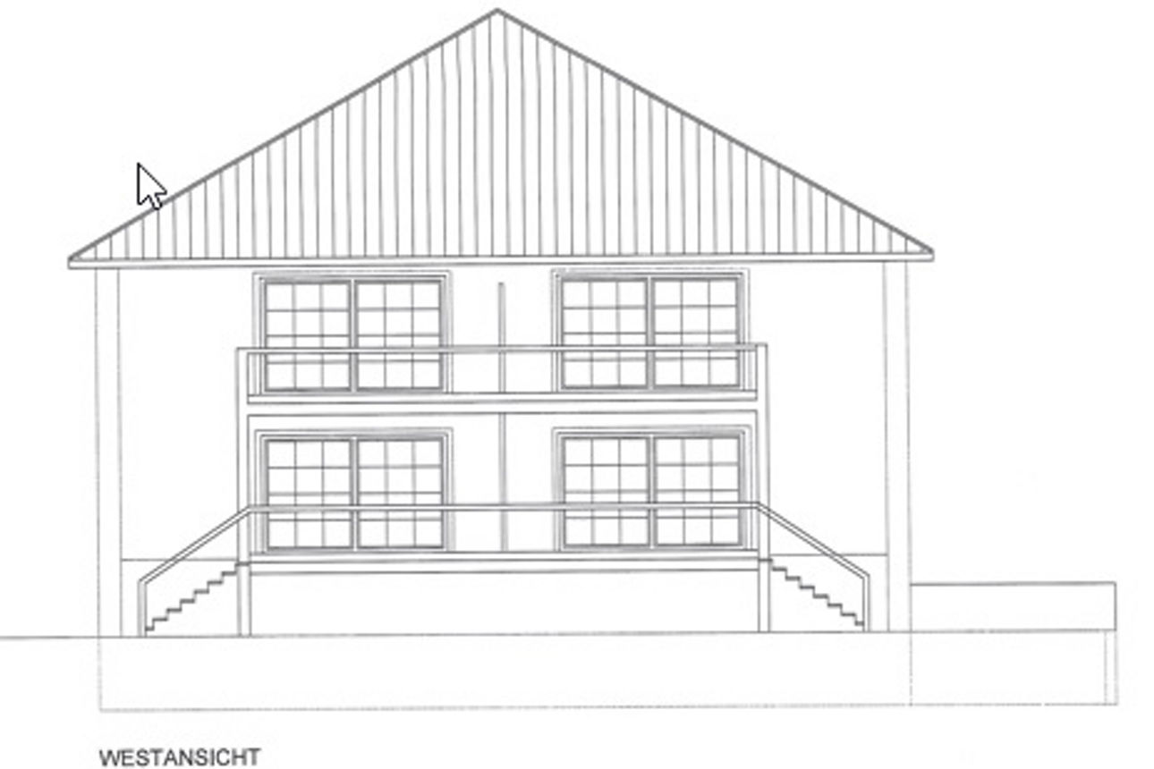
  • Ein Skizze der Westansicht.
  • Ein Skizze der Ostansicht.
  • Der Lageplan.
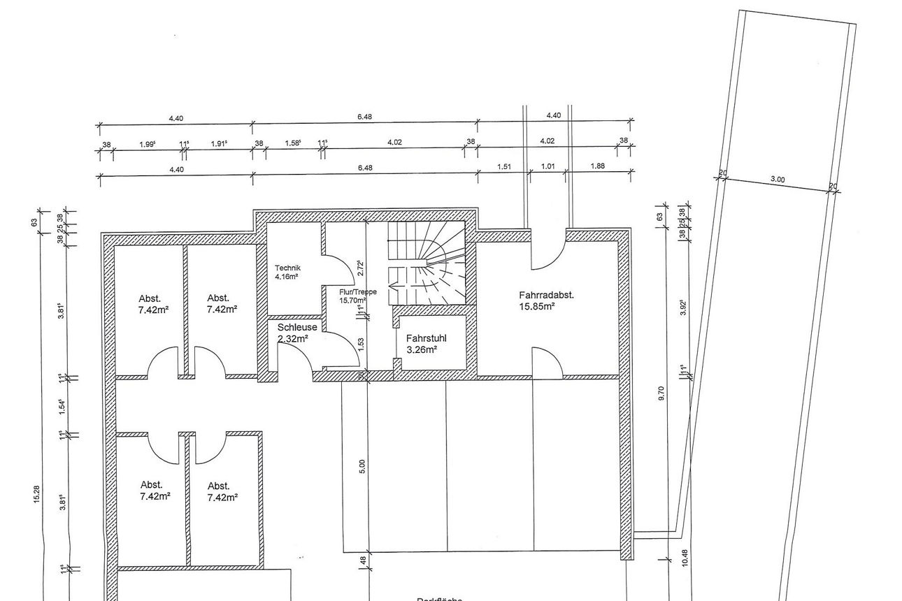
  • Grundriss KG
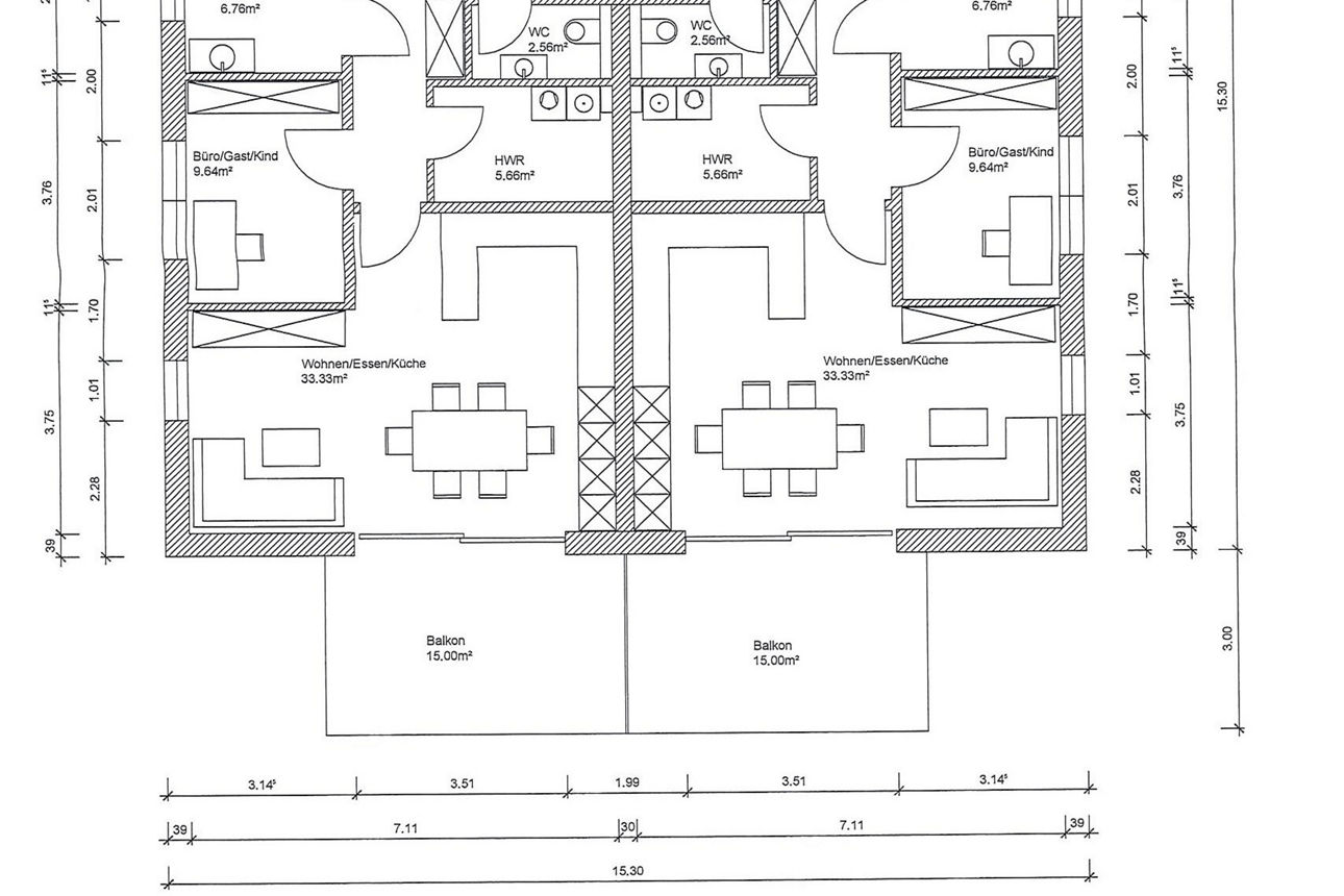
  • Grundriss EG
  • Grundriss OG

Baubeschreibung

159 KB

aktuelle/r Eigentümer/in:Prange Das Haus GmbH
ImmoNr.3088
ObjekttypMehrfamilienhaus
Straße Lüllingstraße
Hausnummer5a
PLZ31675
OrtBückeburg
Flur26
Flurstück1/4
GemarkungBückeburg
BefeuerungLuft/Wasser Wärmepumpe
HeizungsartWärmepumpe
Kabel SAT TVJa
Stellplätze5 Tiefgaragenstellplätze á 27.500,00 € (Kauf)
BalkonJa
TerrasseJa
UnterkellertJa
FenstertypKunststoff/Isolierglas
BauweiseMassiv
Wohnflächeca. 364 m2
Anzahl Zimmer12
Anzahl Badezimmer4
Grundstücksgrößeca. 643 m2
Anzahl sep. WC4
Anzahl Stellplätze5
Verfügbar abMitte 2027
Baujahr2026
ZustandErstbezug
Energieausweis AusnahmeNeu zu errichtende Gebäude gem. § 16 (1) EnEV

Beschreibung

Angepasst an die gewachsene Umgebung von villenartigen Gebäuden entstehen hier vier Eigentumswohnungen, die stilvoller nicht sein können; herrschaftliches Entrè, durchgängig bodentiefe Fenster-Elemente, Personenaufzug vom Keller bis in das 1. Obergeschoss und eine insgesamt hochwertige Ausstattung sprechen für sich.

Die Wohnungen beeindrucken durch ihre perfekte und lichtdurchflutete Grundrissgestaltung mit einer Wohnfläche von jeweils rund 91 m² und bieten für jeden Lebensstil ein anspruchsvolles  Zuhause. Die ruhige und schöne Lage der Terrassen mit eigenem Gartenanteil und der Balkone mit Westausrichtung machen jedes Sonntagsfrühstück zum Erlebnis.

Komfortabel zeigen sich die im Kellergeschoss integrierten Tiefgaragenstellplätze, die jeweils mit einer Wallbox ausgestattet werden. Ob Parksituation oder Einkäufe - Ihr Platz ist sicher und Sie gelangen über den Aufzug direkt in Ihre Wohnung. Ein Abstellraum für Fahrräder und weitere private Abstellräume sind hier ebenfalls vorgesehen.

Praktisch durchdacht sind die zusätzlichen Abstellräume auf den Vorfluren der Etagen; Mobilitätshilfen oder Kinderwagen versperren somit nicht das allgemeine Treppenhaus und sind gut verwahrt.

Schon auf den ersten Blick: hier wohnen Sie künftig SICHTBAR ANDERS.

Ausstattung

  • Vollkeller mit Tiefgaragen-Stellplätzen, Technikraum, Fahrradabstellraum und für jede Wohnung ein Abstellraum
  • Je Etage ein allgemeiner Abstellraum für Kinderwagen, Mobilitätshilfen u.a. im Vorflur
  • 3-fachverglaste Fenster mit elektrischen Rollläden in den Wohnbereichen
  • Fußbodenheizung
  • Fußboden- und Malerarbeiten sind im Kaufpreis enthalten
  • Waschmaschinenanschluss im HWR innerhalb der Wohnung

Lage

Das Objekt befindet sich in einer attraktiven Lage in Bückeburg, einer malerischen Residenzstadt im Weserbergland, die sowohl durch ihre historische Architektur als auch durch ihre hervorragende Anbindung an moderne Infrastruktur überzeugt. Die Innenstadt ist nur wenige Minuten entfernt und bietet eine Vielzahl an Geschäften, Restaurants, Cafés sowie kulturellen Highlights wie das imposante Schloss Bückeburg und das barocke Stadtbild. Für den täglichen Bedarf finden sich zahlreiche Einkaufsmöglichkeiten, Ärzte und Schulen in der näheren Umgebung. Auch die Anbindung an den öffentlichen Nahverkehr und die Autobahn ist sehr gut, sodass die Städte in der Region schnell erreichbar sind. Bückeburg selbst zeichnet sich durch seine ruhige, grüne Umgebung aus, die sowohl Erholung als auch eine hohe Lebensqualität bietet. Die Lage des Objekts ist somit ideal für alle, die die Vorteile einer charmanten Kleinstadt in Verbindung mit einer ausgezeichneten Anbindung an größere Städte genießen möchten.

Sonstige Angaben

Wir stellen Ihre Immobilienfinanzierung auf sichere Beine!

Gerne beraten Sie unsere Finanzierungsexperten zu Fördermitteln der KfW und BAFA im Bereich der energetischen Modernisierung.

Preisliste

Wohnung-Nr.LageKaufpreis
1Erdgeschoss397.000 Euro (mit Gartenanteil)
2Erdgeschoss397.000 Euro (mit Gartenanteil)
3Obergeschoss392.000 Euro
4Obergeschoss392.000 Euro

5 TG-Stellplätze je 27.500 Euro 

Baubeginn Anfang 2026
Fertigstellung etwa Mitte 2027

Ansprechpartner:

Frau Sabine Jüttner

E-Mail: sabine.juettner@vb-isun.de

Telefon: 05722 204-3065